400-1880365 13824505317
当前位置:首页 / 工程案例
广州恒大中心恒温酒窖设计方案及完成后酒窖图片-比士亚[VINCELLAR]广州酒窖设计公司作品
设计师:刘晓鑫
客户名称: 广州恒大地产集团
项目地址: 广东广州市恒大中心
设计公司: 华南(广东,海南,广西)大区
项目简介: 恒大地产集团有限公司是中国恒大集团的下属控股企业,是集团的地产业务主体[1-3] ,总部位于中国广州。恒大集团是集地产、金融、健康、旅游及体育为一体的世界500强企业集团,总资产达万亿
  案例详情:

广州恒大中心整体恒温恒湿酒窖设计方案

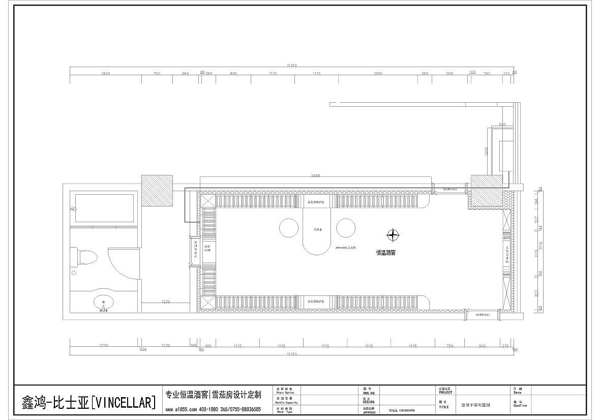
广州恒大中心整体恒温恒湿酒窖设计方案-平面布置图

广州恒大中心酒窖设计效果图-A 

广州恒大中心酒窖设计效果图-B

广州恒大中心整体恒温恒湿酒窖设计方案-电路布置图

广州恒大中心整体恒温恒湿酒窖设计方案-保温层制作示意图

广州恒大中心整体恒温恒湿酒窖设计方案-保温门制作示意图

广州恒大中心整体恒温恒湿酒窖设计方案-比士凯尔[BREEZAIRE]酒窖空调安装示意图广州恒大中心整体恒温恒湿酒窖设计方案-A立面制作示意图

广州恒大中心整体恒温恒湿酒窖设计方案-B立面制作示意图广州恒大中心整体恒温恒湿酒窖设计方案-C立面制作示意图

广州恒大中心整体恒温恒湿酒窖设计方案-D立面制作示意图

广州恒大中心酒窖完工酒窖图片A

广州恒大中心酒窖完工酒窖图片B

广州恒大中心酒窖完工酒窖图片C


上一篇:吉林长春森林华墅私家整体酒窖设计制作完成酒窖图片    下一篇:大连玛歌咖啡整体酒窖设计制作完成
联系我们

深圳市鑫鸿比士亚酒窖文化传播有限公司
地址:深圳市福田区园岭街道上林社区八卦三路88-8号清凤荣盛创投大厦303
电话:400-1880365   13824505317
邮箱:520130588@qq.com

雪茄房设计定制案例
关于我们  |  酒窖设计  |  不锈钢酒柜  |  雪茄房  |  酒窖空调  |  联系我们
深圳市鑫鸿比士亚酒窖文化传播有限公司
地址:深圳市福田区园岭街道上林社区八卦三路88-8号清凤荣盛创投大厦303
电话: 400-1880-365 13824505317 E-mail:520130588@qq.com QQ:520130588
Copyright © 2006-2019深圳市鑫鸿比士亚酒窖文化传播有限公司 版权所有 
粤ICP备12040261号 
扫一扫,关注我们