400-1880365 13824505317
当前位置:首页 / 工程案例
辽宁大连迪亨酒庄装修设计效果图及完工后酒庄图片
设计师:王顥程
客户名称: 迪亨酒庄
项目地址: 辽宁大连
设计公司: 项目简介: 迪亨公司贸易部曾与非洲商会合作参与中国援非项目,在马达加斯加建立水泥厂,并与CHINE SHU GUANG MADAGASCAR LONG CIMENTERIE公司达成合作协议;与朝鲜多个会社合作,开始对朝贸易;与日本会社合作,启动日本化妆品进口案件。2011年5月,大连迪亨企业咨询有限公司贸易部独立出来,正式成立了大连迪亨国际贸易有限公司。公司位于美丽的海滨城市大连。
  案例详情:

辽宁大连迪亨酒庄酒窖工程设计方案效果图及完工后酒窖图片

大连迪亨酒庄酒窖装修设计效果图

辽宁大连迪亨酒庄装修设计效果图及完工后酒庄图片-酒窖设计方案

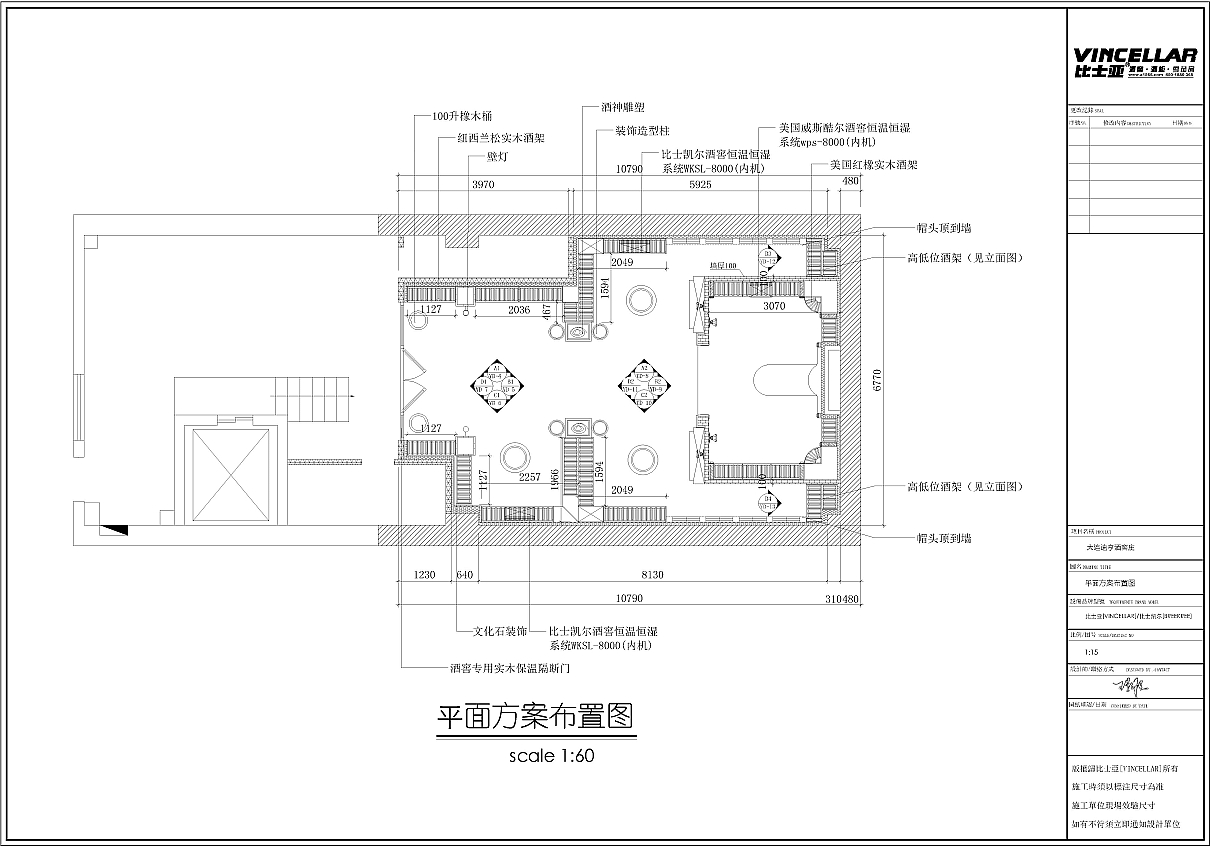
辽宁大连迪亨酒庄装修设计效果图及完工后酒庄图片-平面方案布置

辽宁大连迪亨酒庄装修设计效果图及完工后酒庄图片-平天花方案布置

辽宁大连迪亨酒庄装修设计效果图及完工后酒庄图片-地面花方案布置

辽宁大连迪亨酒庄酒窖工程设计方案-A1立面布置

辽宁大连迪亨酒庄装修设计效果图及完工后酒庄图片-B1立面布置

辽宁大连迪亨酒庄装修设计效果图及完工后酒庄图片-C1立面布置

辽宁大连迪亨酒庄装修设计效果图及完工后酒庄图片-酒窖专用保温隔热门

辽宁大连迪亨酒庄装修设计效果图及完工后酒庄图片-A2立面布置

辽宁大连迪亨酒庄装修设计效果图及完工后酒庄图片-B2立面布置图

辽宁大连迪亨酒庄装修设计效果图及完工后酒庄图片-C2立面布置图


辽宁大连迪亨酒庄酒窖工程设计方案-酒窖图片A

辽宁大连迪亨酒庄酒窖工程设计方案-酒窖图片B

辽宁大连迪亨酒庄酒窖工程设计方案-酒窖图片C

辽宁大连迪亨酒庄酒窖工程设计方案-酒窖图片D

辽宁大连迪亨酒庄酒窖工程设计方案-酒窖图片E

辽宁大连迪亨酒庄酒窖工程设计方案-酒窖图片F



   下一篇:江苏苏州皇朝酒业酒庄设计效果图
联系我们

深圳市鑫鸿比士亚酒窖文化传播有限公司
地址:深圳市福田区园岭街道上林社区八卦三路88-8号清凤荣盛创投大厦303
电话:400-1880365   13824505317
邮箱:520130588@qq.com

雪茄房设计定制案例
关于我们  |  酒窖设计  |  不锈钢酒柜  |  雪茄房  |  酒窖空调  |  联系我们
深圳市鑫鸿比士亚酒窖文化传播有限公司
地址:深圳市福田区园岭街道上林社区八卦三路88-8号清凤荣盛创投大厦303
电话: 400-1880-365 13824505317 E-mail:520130588@qq.com QQ:520130588
Copyright © 2006-2019深圳市鑫鸿比士亚酒窖文化传播有限公司 版权所有 
粤ICP备12040261号 
扫一扫,关注我们